|
Aus dem Leben
Familie
Wohnorte
Studium
Beruf
Interessen
Biographie
Urlaub
Fuhrpark
Auto
Bilder
Fiat Ducato Knaus 510 C
Fiat Ducato Knaus 608 H
Mercedes E270 T CDI
VW Golf I Cabrio
Motorrad
Trike
E-Scooter
Verschollene
Wissenswertes
Pfadis
DPSG Stamm Ulm-Nord
DPSG Bezirk Ostalb
Waterworld
Fett Floss
Zeltplätze
Hütten
Snowboard
Aktionen
Unterkünfte
Tipps
Aktuelles
Wetter
|
|
Diese Seite ist unserem zweiten Wohnmobil gewidmet:
Fiat Ducato (Typ
230) Knaus Sun Traveller 608 H
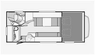
Aufbauskizze:

Länge: 6.130mm, Breite: 2.300mm, Höhe: 3.090mm
Leergewicht: 2.950kg
Fahrzeug-Ident.-Nr.: ZFA23000005986466
Fahrzeugbeschreibung:
EZ: 14.03.2002,
2.8JTD,
94kW/128PS, 300Nm, ABS, Fahrerairbag, Wegfahrsperre,
Servolenkung, 3.5to. (Möglichkeit zur Auflastung auf zGG 3.85to ohne techn. Veränderung),
6 Sitzplätze, 4x 3-Punktgurte+2x Bauchgurt,
Alkovenbett mit 2 Matratzen und Lattenrost,
2 seitliche Fenster im Alkoven mit Leiter&Netz, gr. aufstellbare
Panormadachluke über der
Sitzgruppe (Umbau zu Bett),
Kühlschrank (12V, 230V, Gas) mit Gefrierfach, Spüle,
3er Gas-Kochfeld, gr. Frischwassertank unter der Sitzbank,
Truma-Heizung
mit Umluftgebläse/Boiler(mit Frostschutzventil),
Bad mit zudrehbarer Duschwand, Thetford SOG
Toilette,
Kleiderschrank,
1x Radio/Cassette und 1x Radio/CD, Insektenschutztür, Platz für 2x Gasflaschen,
großzügiges seitliches Staufach, gr. Unterflurstaufach über die gesamte
Fahrzeugbreite,
13-pol.Steckdose für Mot.Halterung od. Anhängerkupplung, Heckstützen, Fahrradhalter(4x), Markise
Omnistore 3,5m, Dachreling/Heckleiter, 2x Batterien, Knaus
Bord-Control System,
dicker Vorhang zum Abtrennen von Fahrerhaus und Wohnraum, Nichtraucher,
keine Tiere.
Neuteile:
24.08.2014 [73.930km] Zahnriemen gewechselt.
27.12.2012 [68.314km] Neue Winterreifen 215/75R16C 113R/111R
Michelin Agilis Alpin
15.05.2012 [66.837km] HJS Russpartikelfilter (=Grüne
Plakette)
21.07.2010 [60.898km] Hauptbremszylinder, Bremskraftverstärker,
Bremsflüssigkeit, Bremsanlage entlüftet.
Extras eingebaut:
-12V
auf 230V Stromwandler, inkl. Fernsteuerung.
- Ultraschall Einparkhilfe (vorne und hinten) mit 8 Sensoren --> Tipp:
Kabelführung am Fahrzeugunterboden mit leichtem Wellrohr aus PVC,
flammwidrig, selbstverlöschend, korrosionsfest [außen 20mm, innen
14,5mm] von Marley.
- Lüftungsgitter Kühlschrank außen erneuert (Zu- und Abluft).
- Motorchiptuning: Anhebung auf
121KW/165PS und 378Nm (Tuningkit
Carbon).
Vorbesitzer:
27.05.2010 Denis Brenner (59.500km)
19.05.2003 Angelika Krauter geb. Ohlau (10.06.1965), 71711 Murr (LB-FX
503)
14.03.2002 Eugen Schweikert GmbH & Co. KG, 74532 Ilshofen (SHA-PP 673)
Fahrzeugbesonderheiten:
-
Frostschutzventil öffnet bei einer Außentemperatur ca. 5°C - dies kann
mit einer Schnurr/Schlaufe bewusst unterbunden werden. Gleichzeitig
darauf achten, dass ein geschlossenes Frostschutzventil die Batterie
belastet (wichtig bei längerer Standzeit).
- Realer durchschnittlicher
Verbrauch über 5 Jahre: 12,7Liter/100km (pendelt zwischen 10,4l und
15,3l).
- Reichweite mit einer Tankfüllung beträgt ca. 500km.
- Wintertaugliches Wohnmobil (Strangsperre
Frischwasser
und Abwasser)
- große Seitensitzgruppe. Aufklappbar und zusätzlicher Zugang zum
seitlichen Staufach.
- Toilettenspülung bedient sich vom großen Frischwassertank. Kein
separater Wassertank notwendig.
- sehr zuverlässiges Wohnmobil, sehr gut isoliert (im Sommer wie im
Winter).
|